Extensions, Lofts, Basements — We’ve Done Them All.
Serving London and surrounding counties.

Browse our projects and find inspiration for yours.

Selected Projects

Side Extension and Kitchen

A side extension and kitchen project in the heart of London

A full remodel of a rear extension in Shepherds Bush

Rear Extension Remodel
Side Extension and Renovation

New side extension with new kitchen and interior renovation

Rear Extension and Renovation

New rear extension and full interior renovation in Chiswick

Rear Extension and Kitchen

A rear extension and kitchen project in Bracknell, Berkshire

A full remodel of a loft extension including custom interior design

Loft Extension with Dormer
Loft Extension with Dormer

Simple loft extension to add a dormer and form a new bedroom

Pool House & Residential Gym

Design and Planning for a pool house and residential private gym

Basement Extension

Basement extension and renovation with custom joinery and design

A full remodel of a Victorian house in the heart of Hammersmith

House Renovation
Front Extension - 2-storey

A full remodel of a front facade for a house in Benfield, Berkshire

Newbuild house with basement

Custom design house on a tiny plot in Earlsfield, London

Rear Extension & Kitchen

A side extension and kitchen project in the heart of Chiswick

Side Extension to add larger kitchen and two more bedrooms

Side Extension - 2-storey
Loft Extension with Dormer

Large rear loft extension project to modify an existing loft.

Rear Extension and Kitchen

Full width rear extension to detached house in Berkshire

Office Design and Remodel

Interior design and remodel of an existing office in Acton, London

Loft conversion and addition of dormer in Berkshire.

Loft Extension with Dormer
Rear Extension - 2-storey

Design and remodel of an existing house in Gerard's Cross

Rear Extension & Kitchen

Simple rear extension project to modify internal layout and kitchen

Rear Extension & Kitchen

Simple rear extension project to modify internal layout and kitchen

A two-storey side extension to existing house in Sandhurst

Side Extension - 2-storey
Loft Conversion and Interior

Construction drawings for a loft conversion in Harpended

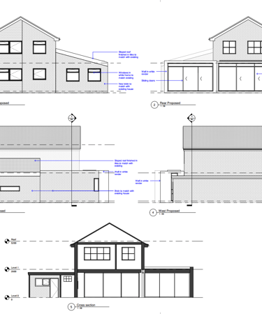
Rear & Side Extension

Design and planning for a big rear and side extension project.

Living Accommodation

New build to form accommodation for care home staff

A simple 1st floor extension and remodel of existing bathroom

1st Floor Extension and Design
Garden Outbuilding - Planning

Simple garden outbuilding proposal in Northamptonshire

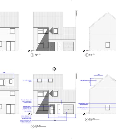
Side and Rear Extension

Large extension project that adds a rear & two-storey side extension